- Categoria Immobile: Residenziale
- Numero Locali: 4
- Località: Collegno
- Tipologia: Appartamento
- Tipo Contratto: Vendita
- Piano: Secondo
- Bagni: 1
- Anno: 2026
- Superficie: 100 mq²
- Classe Energetica: A3
- Piani Totali: 2
Caratteristiche
Dettagli
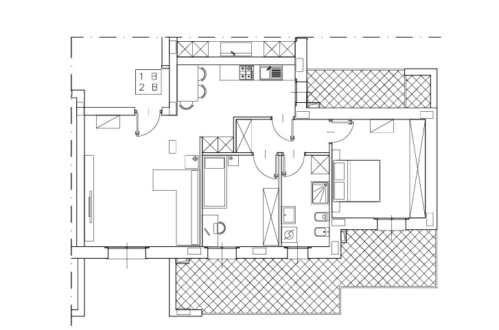
Nel nuovo complesso residenziale “I PLATANI” proponiamo in vendita appartamento quadrilocale con terrazzo di prossima realizzazione in classe energentica A3. L’immobile si presenta così composto: ingresso su soggiorno, cucina abitabile con balconcino, disimpegno, camera da letto matrimoniale e seconda camera da letto con balcone comunicante, bagno e terrazzo al piano sovrastante. Possibilità di box auto singolo al prezzo di 22.000€ o box auto doppio al prezzo di 30.000€.
Caratteristiche della residenza:
– pannelli fotovoltaici
– pompe di calore per la produzione di acqua calda e riscaldamento
– riscaldamento a pavimento radiante
– trattamento dell’aria
– tapparelle motorizzate in alluminio coibentato
– serramenti in PVC di ultima generazione
– predisposizione climatizzazione e antifurto
– salvavita stop and go
– predisposizione ricarica elettrica per autoveicoli
– posti auto privati all’interno dell’area condominiale
– edificio gas free
Possibilità di altre soluzioni abitative, per info contattateci.
NB: NO SPESE AGENZIA.
- ID: 27652
- Pubblicato: dicembre 13, 2025
- Ultimo Aggiornamento: dicembre 13, 2025
- Visualizzazioni: 85